Veranstaltungsort für Tagungen, Seminare, Produktpräsentationen oder Pressekonferenzen.
Informationen für private und gewerbliche Bauherrinnen und Bauherren, Städte und Kommunen.
Die Netzwerkveranstaltung "Architektur macht Schule" 2016 legte den Schwerpunkt auf das Themenfeld Bauhaus und Wohnen
"Impulse vom Bauhaus: Wohnen damals und heute" - vier schlagende Argumente haben uns zur speziellen Themenwahl für die diesjährige Netzwerkveranstaltung "Architektur macht Schule" bewogen: Baden-Württemberg ist eines der fünf in der sogenannten Bauhaus-AG zusammengeschlossenen Länder, die das 100-jährige Gründungsjubiläum der berühmten Architektur- und Designschule mit eigenen Aktionen feiert; das Wohnen hat derzeit größte gesellschaftspolitische Brisanz; Architekturvermittlerinnen und -vermittler fragen uns immer wieder nach konkreten Projektvorschlägen; auch bei den Schulen steht das Thema Bauhaus auf der Agenda, so dass von deren Interesse an Projektangeboten auszugehen ist. Die sehr guten Anmeldezahlen bestätigten uns in diesem Konzept.
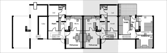
Als Experte für den sozialen Wohnungsbau in der Weimarer Republik berichtete Dr. Dr. Arne Winkelmann von der Entwicklung im historischen Kontext: Unter der Prämisse "mehr Licht, Luft und Sonne" entstanden in den 1920er Jahren minimierte aber qualitätvolle Wohngrundrisse für die Arbeiterschaft.
Anhand von Fotos und Zeichnungen der Siedlung Dessau-Törten zeigte der Frankfurter Publizist und Kurator exemplarisch die ausgeklügelte Konzeption von Walter Gropius aus dem Jahr 1926: Baukonstruktion und Grundrisse, Materialien und Möbel... der Architekt habe seinerzeit an sämtlichen Stellschrauben des Wohnungsbaus gedreht. Die "eigentliche Sensation" war das eigene Kinderzimmer. Doch auch Parzellen für den Anbau von Gemüse und Obst gehörten zum Standard.
Winkelmann gab Einblick in die über die Jahre entwickelten Wohntypen. Dabei ließ er auch solche Bilder nicht aus, die davon zeugen, welch gestalterisches Unwesen die Nutzer oft getrieben haben - ein Problem, das vor allem dann auftauchte, wenn der Wohnraum in Privatbesitz war. Genossenschaftliches Bauen böte hier bessere Voraussetzungen. Während sich die Bauhaus-Architektur zunächst gegen den Vorwurf erwehren musste keine nationale Identität zu spiegeln und "nicht völkisch" zu sein, wurde sie ab 1949 als die gültige Bauweise gepriesen, als die Architektur der Demokratie.
Nachhaltig diskreditiert wurde der soziale Wohnungsbau laut Winkelmann durch seine Weiterentwicklung hin zu den Großsiedlungen, den grauen Betonburgen der 1960/70er Jahre. "Diese Trabantenstädte mit Wohnhochhäusern [...] negierten in ihren Dimensionen und in ihrer monotonen Gestaltung jegliche wahrnehmungspsychologische Aspekte." Anonymität, Gettoisierungund soziale Verwerfungen waren die Folge. "Aufgrund des Überangebots zog sich die öffentliche Hand seit den 1980er Jahren immer mehr vom sozialen Wohnungsbau zurück", erklärte Winkelmann.
Und heute? Ein direkter Vergleich mit den Bauhaus-Experimenten gestalte sich schwierig, denn die Anforderungen an den Wohnungsbau seien vor dem Hintergrund eines höheren Pro-Kopf-Wohnflächenbedarfs, des demographischen Wandels sowie neuer Förder- und Finanzierungsmöglichkeiten sehr viel ausdifferenzierter. Hinzu kämen die jüngsten Herausforderungen durch den Zustrom von - oftmals traumatisierten - Flüchtlingen mit ihren ganz eigenen kulturellen und religiösen Bedürfnissen: "Es kann nicht sein, dass diese Menschen bei uns kaserniert werden", stellte Winkelmann klar.
Dem spannenden Impulsvortrag folgten drei parallel laufende Workshops. Eine Gruppe besuchte die Weißenhofsiedlung. 1927 als Bauausstellung zum modernen Wohnen errichtet, ist diese ein einzigartiges Manifest. Denn dort ergriffen seinerzeit 17 renommierte Architekten die Chance, ihre neuartigen Ideen als Programm zu formulieren und baulich umzusetzen. Wie sich ein Besuch für unterschiedliche Lernziele und mit Schülern verschiedener Altersstufen gestalten lässt, erläuterte Anja Krämer, Leiterin des Weißenhofmuseums im Haus Le Corbusier.
Ein weiterer Workshop beschäftigte sich mit Möbeln. Nach einer allgemeinen Einführung gab Architekt Markus Lägeler Einblick speziell in die Geschichte des Stuhls - "althochdeutsch stuol = Sitz, Thron" -, der "erst ab dem 18./19. Jahrhundert in weiten Bevölkerungskreisen zum Normalfall" wurde. Dieses exemplarische Möbelstück spiegelte er in der Ideenwelt des Bauhauses, zu dessen Hauptzielen das "funktionale Gestalten" gehörte. Im praktischen Teil erstellten die Teilnehmerinnen und Teilnehmer eigene Sitzgelegenheiten im Maßstab 1:10.
Wie viel Fläche der minimierte Grundriss des sozialen Wohnungsbaus konkret vorsah und welche Raumansprüche heutzutage Standard sind, war die Fragestellung des dritten Workshops. Dr. Dr. Arne Winkelmann ließ die Anwesenden mit einfachen Übungen und Versuchen das Thema praktisch aufarbeiten. Dazu gehörte, mit dem eigenen Körper die Fläche für eine bestimmte Nutzung zu ermitteln und auch die mögliche Möblierung anhand von Platzhaltern zu überlegen.
Begleitet von Bildern aus der jeweiligen Gruppenarbeit fassten die drei Workshop-Leiter die Inhalte und Ergebnisse ihres Nachmittags im Abschlussplenum zusammen. Es folgte ein angeregterAustausch rund ums Thema Architekturvermittlung. Dabei wurde auch der Ruf nach mehr Anerkennung für diese wichtige Bildungstätigkeit laut: Auf rein ehrenamtlicher Basis könnten Architektinnen und Architekten die anspruchsvolle Arbeit nicht erbringen; darüber hinaus regten die Teilnehmer an, dass die Kammer für den Besuch der "Architektur macht Schule"-Veranstaltung anerkannte Fortbildungsstunden vergeben solle.
Impulse vom Bauhaus: Wohnen damals und heuteZusammenfassung des Einführungsvortrags von Dr. Dr. Arne Winkelmann
Möbel: Bedeutung, Aufgabe und FunktionWorkshop mit Markus Lägeler: Projektverlauf, Aufgabe, Materialbedarf, Arbeitsblatt
Grundrisse und RaumansprücheWorkshop mit Dr. Dr. Arne Winkelmann: Exposee
Die Weißenhofsiedlung als ManifestWorkshop mit Anja Krämer: Exposee